Listing Tools

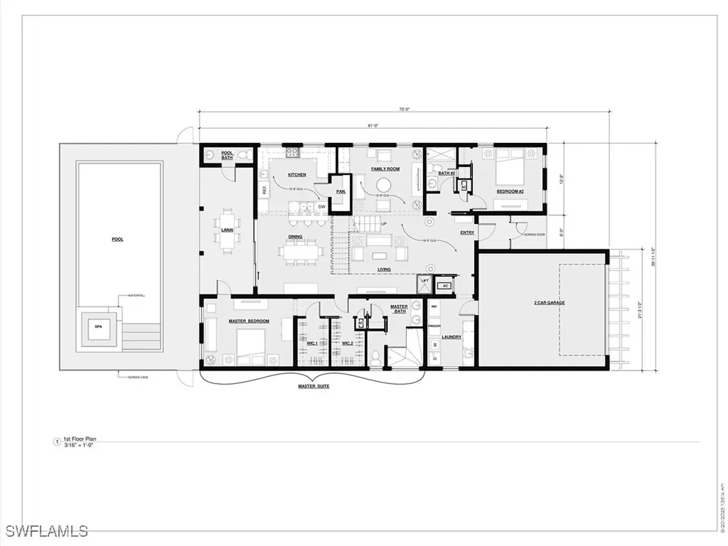
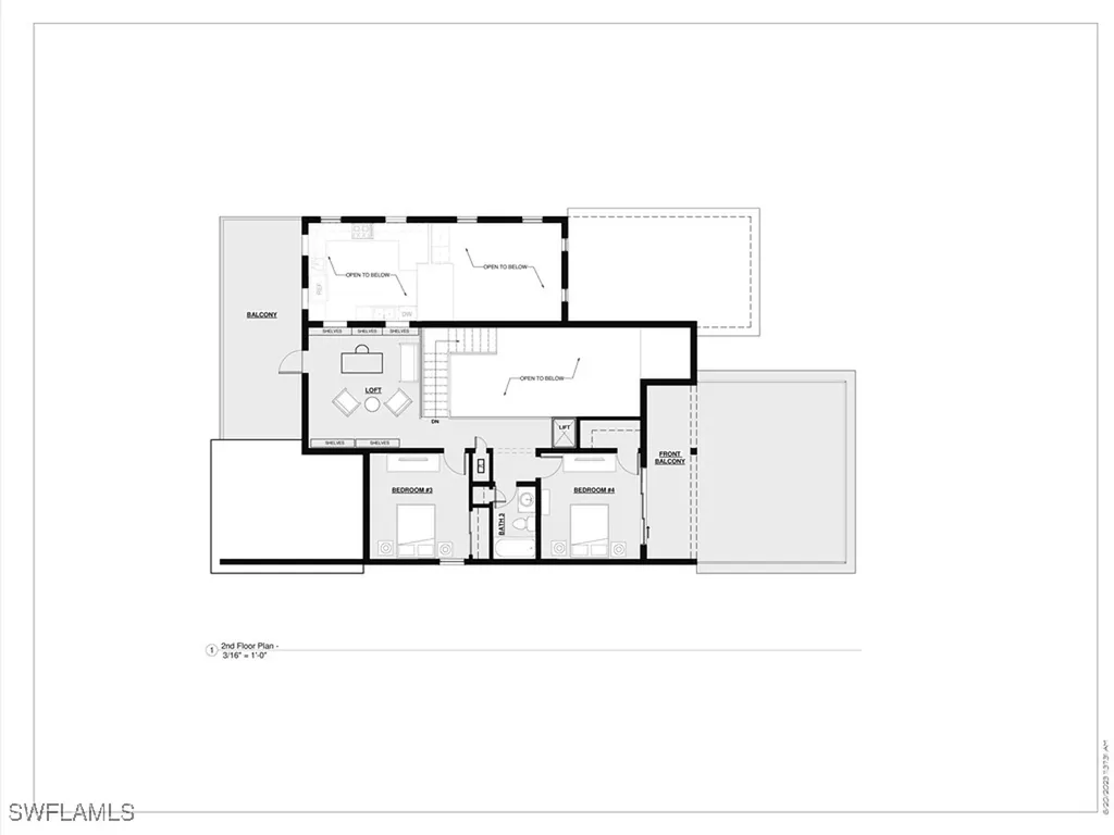
*Appraisal for completed home just came back at over $1M.* Exceptional Opportunity - High-Efficiency Home Sold As-Is. Unlock the potential of this partially completed residence, designed with cutting-edge materials for long-term durability and comfort. Constructed with autoclaved aerated concrete blocks, this home offers superior thermal insulation, soundproofing, and UV resistance-keeping interiors cooler and quieter year-round. Equipped with 9/16-inch impact-resistant windows, the structure is built to withstand harsh weather while maximizing energy efficiency and natural light. Two commercial-grade Mitsubishi VRF (Variable Refrigerant Flow) air conditioning systems are included, ensuring powerful, zoned climate control with minimal energy use, even with Soaring High 20-Foot Ceilings. This property is being sold as-is, providing a unique chance for builders, investors, or visionary buyers to complete the interior to their exact specifications. The heavy lifting is done-now it's time to make it your own.

Property Details

Interior Features

Exterior Features

Community

Map Location

Listed by John Paul Opteyndt,LLC of Coldwell Banker Realty

Based on information submitted to Gulf Coast as of November 9, 2025 . All data is obtained from various sources and has not been, and will not be, verified by broker or Gulf Coast.  All information should be independently reviewed and verified for accuracy. Properties may or may not be listed by the office/agent presenting the information. NOTICE: Many homes contain recording devices, and buyers should be aware they may be recorded during a showing.

Hi there! How can we help you?

Contact us using the form below or give us a call.

Send Us A Message:

I agree to receive marketing and customer service calls and text messages from Diana Coyle. To opt out, you can reply 'stop' at any time or click the unsubscribe link in the emails. Consent is not a condition of purchase. Msg/data rates may apply. Msg frequency varies. Privacy Policy.

Do not fill in this field:

This site is protected by reCAPTCHA and the Google Privacy Policy and Terms of Service apply.

Hi there! How can we help you?

Contact us using the form below or give us a call.

Send Us A Message:

Do not fill in this field:

This site is protected by reCAPTCHA and the Google Privacy Policy and Terms of Service apply.

Hi there! How can we help you?

Contact us using the form below or give us a call.

Send Us A Message:

Do not fill in this field:

This site is protected by reCAPTCHA and the Google Privacy Policy and Terms of Service apply.

Do not fill in this field:

This site is protected by reCAPTCHA and the Google Privacy Policy and Terms of Service apply.

Do not fill in this field:

This site is protected by reCAPTCHA and the Google Privacy Policy and Terms of Service apply.

Do not fill in this field:

This site is protected by reCAPTCHA and the Google Privacy Policy and Terms of Service apply.

$

Do not fill in this field:

This site is protected by reCAPTCHA and the Google Privacy Policy and Terms of Service apply.